- 項目概述
- 項目方案
- 項目工藝
- 項目設備清單
- 項目現場照片
2018年4月,同高科技承接了吉利汽車在成都基地新建工廠項目,負責對BX11車型頂蓋激光熔焊工作站進行“交鑰匙工程”。這也是同高科技繼吉利路橋基地、張家口基地、杭州灣基地以及余姚基地后的第5個采用車頂激光熔焊工藝的整車制造基地,該工藝對比傳統激光釬焊具有絕對優勢:

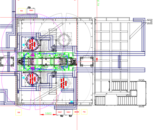
該項目坐落于吉利成都基地,車頂激光熔焊站位于白車身主線上,激光焊接房與激光源房設計為一體式兩層結構,總占地面積為6x8x8米,一層為輸送滾床、1臺在線切割機器人及2臺激光熔焊機器人,激光源房及除塵系統均擺放在二層鋼平臺上。
? 工位規劃50JPH,節拍CT=61.5s,預留60JPH產能;
? 熔焊采用單壓輪激光熔焊,替代車頂夾具功能;
? 高精度光學焊縫跟蹤系統,可確保焊接質量的穩定性;
? 2D視覺車頂安裝位置測量系統,測量節拍為10s;
? 熔焊焊接速度≥100mm/s,配合使用4kw激光器;
? 在線切割采用3D高精度圖形切割頭,切割范圍為50*50mm;
? 單側熔焊機器人可焊接左右車頂,作為焊接系統的降速互備方案;
? 激光熔焊系統采用世界先進主流工藝設備配置,可實現高品質焊接質量要求;
? 工位采用同高科技自主研發的雙層鋁合金的防護系統,并通過德國TUV安全檢測及認證;

2D布局圖
項目采用沃爾沃激光焊接工藝標準,選用PERMANOVA單壓輪熔焊頭,配合高精度光學伺服焊縫跟蹤系統,并在焊接前根據2D車頂位置測量系統自動校正焊接軌跡,焊接焦點尺寸為0.6mm,焊接速度≥100mm/s。

焊接后的車頂焊接質量可以通過目視檢查,或選配安裝在線自動質量監測系統PLASMO。






中文
English

